Trilocale in vendita

Altopascio, Via Chimenti - Spianate
€ 130.000
3 locali 3 locali
72 Mq 72 Mq
1 bagno 1 bagno

Trilocale in vendita

Altopascio, Via Chimenti - Spianate

Descrizione annuncio

Spianate

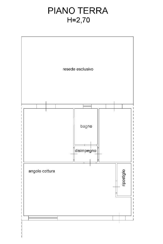
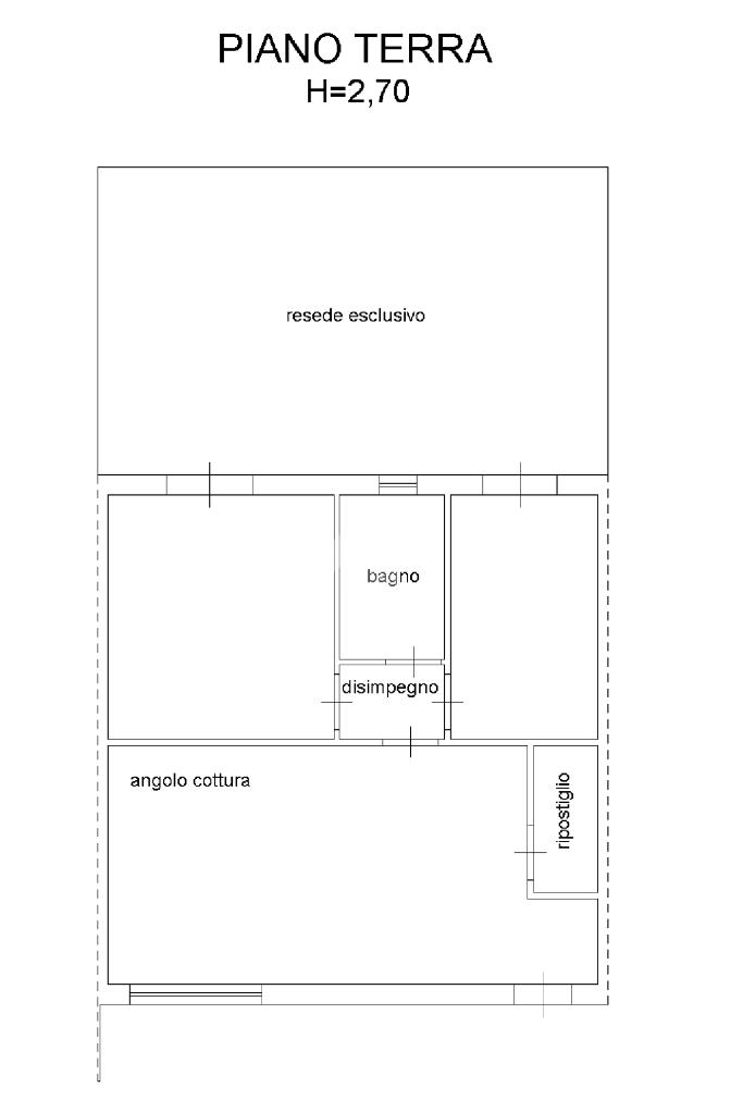
Appartamento al piano terra corredato di giardino privato di 40 mq e due posti auto coperti.

In posizione centrale, a pochi passi dai principali servizi del paese di Spianate , proponiamo in vendita un appartamento al piano terra di un complesso residenziale edificato nel 2008.

L’abitazione si sviluppa al piano terra su un unico livello.


La zona giorno si compone di un ampio open space con soggiorno e cucina a vista, oltre a un comodo ripostiglio.

Tramite disimpegno si accede alla zona notte, composta da una camera matrimoniale e una camera singola, entrambe con affaccio diretto sul giardino privato, e da un bagno finestrato con doccia.

Completano la proprietà un giardino di circa 40 mq, e due posti auto coperti.

Soluzione perfetta per chi cerca comodità, in una zona tranquilla ma vicina a tutti i servizi.

Mostra tutto

Nelle vicinanze

Trasporto pubblico Trasporto pubblico
Via Bramalegno, 128 Fr.
Via Bramalegno, 128 Fr.
2,8 Km
Ricariche auto elettriche Ricariche auto elettriche
EnelX EVA+ Conad Altopascio
2,4 Km
Scuole Scuole
Scuole
2,2 Km
Scuola dell'Infanzia Vione
2,8 Km
Farmacia Farmacia
Farmacia La Calendula
2,0 Km
Supermercati Supermercati
Conad
2,4 Km
Negozi Negozi
Negozi
1,9 Km
Alimentari Colletti Francesca
2,8 Km
Panificio Il Buon Pane
3,0 Km
Bar Bar
Caffé d'angolo
1,1 Km
Bar Gelsa
1,9 Km
Bar
2,2 Km
Quelli che...il bar
2,8 Km
Ristoranti Ristoranti
Ristorante Da Coso
2,2 Km
Antico Toppato
2,7 Km
L'Osteria
2,8 Km
Pizzeria La Villa
2,8 Km
Cavalieri del Tau
3,0 Km
Mostra tutto

Caratteristiche

Rif.:
61136679
Piano:
Terra di 3
Totale piani:
3
Posti auto:
2
Camere da letto:
2
Arredamento:
Assente
Mostra tutto
Prezzo Prezzo
€ 130.000
Rata mutuo Rata mutuo
€ 606 / mese
Spese annue Spese annue
€ 500
Proponi il tuo prezzoProponi il tuo prezzo

Classe Energetica

C
C
C
C
C
C
C
C
C
EP globale non rinnovabile:
93.20 kW h/m² anno
EP globale rinnovabile:
0.00 kW h/m² anno
EP invernale del fabbricato:
EP estiva del fabbricato:
Anno di costruzione:
2008
Riscaldamento:
Autonomo
Tipo impianto:
A radiatori
Tipo alimentazione:
Metano

Ti interessa visionare l'immobile?

Fissa un appuntamento  Fissa un appuntamento

Richiedi informazioni

Clicca su Leggi per aprire l'informativa
* Questi campi sono obbligatori

Calcola il tuo mutuo

Semplice e senza impegno
Anticipo

( % )
Mutuo

( % )

pochi semplici passi

inserisci i tuoi dati
Questionario completato
Grazie per aver richiesto un appuntamento senza impegno con un nostro Consulente del Credito e Assicurativo.

Hai inserito correttamente tutti i dati necessari e a breve riceverai una e-mail con un link da convalidare per inviare i tuoi dati.
Affiliato
Studio Altopascio Centro Sas
Via Cavour, 27 55011 Altopascio (LU)

Il nostro staff


  • Asya Gagliardi
    Coordinatrice

  • Camilla Lomanto
    Affiliata

  • Tecla Lomanto
    Coordinatrice

  • Angelica Santosuosso
    Collaboratrice

  • Mariadomenica Carlucci
    Affiliata
Via Cavour, 27 55011 Altopascio (LU)
Zona: Altopascio
Mostra su mappa
Affiliato
Studio Altopascio Centro Sas
Via Cavour, 27 55011 Altopascio (LU)

2025 Tecnocasa Franchising S.p.A. - P. IVA 08365160152 - Via Monte Bianco 60/A 20089 Rozzano (MI). Ogni agenzia ha un proprio titolare ed è autonoma. Privacy policy | Policy utilizzo | Cookie policy